Spazio Ufficio Polifunzionale in Via Mascagni/Via Mozart – Geo Immobiliare presenta un’opportunità straordinaria per chi cerca uno spazio ufficio versatile e di prestigio. Questo ampio locale, distribuito su due piani con ascensore e doppia entrata indipendente, offre un’area totale di 379 metri quadrati.
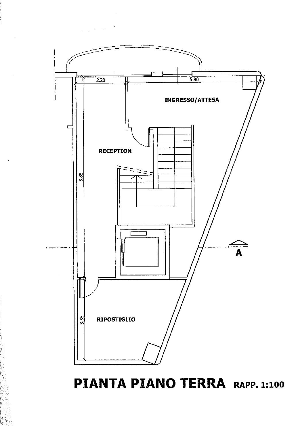
Al piano terra, un’accogliente sala d’attesa, una moderna zona reception e un pratico ripostiglio accolgono i visitatori. Le scale, oltre all’ascensore, conducono al primo piano, accessibile anche tramite una comoda rampa carrabile che permette il parcheggio di numerose vetture nel vasto piazzale esterno di circa 700 metri quadrati.
Il primo piano offre un’elegante atmosfera professionale con un corridoio d’ingresso, doppi servizi, tre ampi ambienti da 60/65 metri quadrati ciascuno, una stanza di circa 27 metri quadrati e un’altra di circa 18 metri quadrati.
Ideale per professionisti, medici polivalenti e scuole professionali, come ad esempio centri di estetica o parrucchieri, questo spazio si trova in una posizione strategica, a pochi passi dalla S.S. 148 Pontina e circondato da supermercati e negozi.
La Classe Energetica sarà fornita al momento della sottoscrizione del contratto definitivo, assicurando la massima trasparenza e conformità alle normative vigenti.
Non lasciarti sfuggire questa eccezionale opportunità per dare vita alle tue ambizioni professionali. Contattaci oggi stesso per saperne di più e prenotare una visita!
Il simbolo indicato in mappa ha lo scopo di fornire indicazioni della zona in cui è situato l’immobile, ma NON necessariamente ne indica l’esatta posizione
L’immobile è visionabile previo appuntamento al nr.06 92014101 Geo Immobiliare – Via dei Lauri 194/196 Aprilia/LT Orario di Agenzia: Lunedì al venerdì dalle ore 09:00 alle ore 13:00 e dalle ore 15:00 alle ore 19:00 Sabato dalle ore 09:00 alle ore 13:00 Pomeriggio Chiuso Domenica Chiuso
Le presenti informazioni e planimetrie sono meramente indicative e non costituiscono elementi contrattuali
